Head1520bb
HEAD
hs code:84565000
| Kullanılabilirlik Durumu: | |
|---|---|
Ürün Açıklaması

En son pazar gelişimini takip ederek, CNC su jeti kesme makinesi sunmakla aktif olarak ilgileniyoruz. Yumuşak ve sert malzemeleri kesmek için yaygın olarak kullanılan jet kesme makinesi, yüksek performansı için piyasada iyi bir taleptir. Kaliteyi sağlamak için, jet kesme makinesinin tam aralığı, müşterinin sonundaki son teslimattan önce çok sayıda parametrede kontrol edilir. Sunulan jet kesme makinesi, uygun fiyata farklı özellikler sunulmaktadır. Su jeti endüstrisindeki deneyimimiz, uzun vadede zaman ve paradan tasarruf edecek küçük ayrıntıları eklememize izin verdi. Tüm makinelerimiz aşağıdaki özelliklerle inşa edilmiş ve satılmıştır
Yüksek hızda pürüzsüz kaplama kesimi için 50 hp yüksekliğinde 420 MPa basınç.
Supercharger'ın ana kalbi, 'yoğunlaştırıcı ' '' ''.
ABD ile kullanıcı dostu ve minimum bakım kesme kafası tasarımı 'su anahtarı mühür kiti ' ve diğer parçalar.
Makinenin tüm bölümleri son derece doğru servo motor üzerinde (Japonya'da yapılmıştır) işlenir. Bu size sorunsuz çalışma ve parçaların uzun ömrü verir.
Kesme masası ve yük taşıma platformu arasındaki ayrı gövde, uzun süreli stres varyasyonundan yük taşıma platformuna kesme doğruluğunu engellemeyi önler.
X Kesme Tablosu Bölüsü Bir kerelik ekstrüzyon oluşturan alüminyum alaşımı oluşturur, hafif, deforme olmamak üzere güçlü çelik, en gelişmiş teknolojidir.
X, Y, Z ekseninde toz geçirmez bezin iptal edilmesi ve Y ekseni çekme hattının gizlenmesi makine ömrünü büyük ölçüde iyileştirin ve bakım maliyetini tasarruf edin.
Motor ve bilyalı vida doğrudan esnek birleştirme ile bağlanır. Titreşim enerjisini geri dönüşümlü ve diğer burulma rijit bağlantılarına kıyasla daha yüksek tahrik doğruluğu ile emebilir.
Kesme kafasının hareket hızını ve doğruluğunu sağlamak için yüksek kaliteli uluslararası marka top vidası, doğrusal kılavuz iletim yapısı kullanma.
Kesme kafası döküm yapısı ve beton yapıdır. Metal parçalar, deformasyon izlerini ortadan kaldırmak ve uzun süreli mekanik hassasiyeti korumak için özel olarak işlenmiştir.
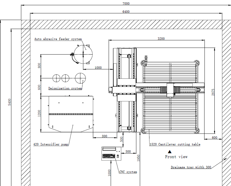
| Maks. | 1500*2000mm |
| Çalışma hızı | 6000mm/dakika |
| Z ekseni seyahati | 150 mm |
| Konumlandırma doğruluğunu tekrarlayın | ± 0.025mm/m |
| Kontrol doğruluğu | ± 0.01mm |
| Kesme Doğruluğu | ± 0.1mm |


Yüksek basınçlı pompa

| Nominal Baskı | 420mpa (60000psi) |
| Çalışma baskısı | 50-380mpa (7200-55000psi) |
| Ana motor gücü | 37kw (50hp) |
| Hava soğutucu gücü | 0.78kW |
| Dimensions | 1900*1350*1100 |
| Ağırlık | 1.3t |
| Maksimum yer değiştirme | 3.7l/dk |
| Basınç oranı | 1:20 |
| Maksimum yağ pompası akışı | 119l/dk |
| Yüksek basınçlı su borusu özellikleri | Φ3/8 ' |
Sıvı-sıvı güçlendirme teknolojisi: Kararlı ve verimli basınç artışı, ithal parçalar uzun vadeli istikrarı garanti eder, endişesiz çalışma!
Askeri sınıf malzemesi: 316L Dikişsiz çelik boru, anti-verim, anti-germe, korozyona dirençli, dayanıklılık % 50 arttı !
Son derece uzun bakım gerektirmeyen: yenilikçi ' tdm ' akümülatör, yaşam süresi 5000 saati aşıyor , endişe, emek ve paradan tasarruf edin!
Büyük kapasiteli tampon: 1.2 litrelik akümülatör, basınç kaybını azaltın, verimliliği % 20 artırın !
Soğutma cihazı, yüksek basınçlı pompanın sıcak yerlerde daha iyi çalışmasına yardımcı olur
Beide Marka Motoru: Dökme demir gövdesi,% 10 enerji tasarrufu, düşük gürültü ve düşük titreşim, kaya-sağlam performans!
80 Pompa Süper Büyük Akış: 119L/Dk Süper Güç, Boru Hattı Dirençini Azalt, Verimlilik%30 arttı !
ISO Uluslararası Standart Petrol Borusu: Basınç ve dalgalanmaya dirençli, sektörde önde gelen sistem istikrarı!
Akıllı Yüksek ve Düşük Basınç Değiştirme: Farklı malzemelere uyum, daha ince kesim, pürüzlülükte (A25+ sürümü için özel) % 50 azalma!
Basınç Yardım için Çift Sigorta: Yüksek ve düşük basınçlı su basınç tahliye vanası, güvenlik koruması için ölü açı yok! (A25+ Sürüm İsteğe bağlı)
7 Akıllı Koruma Türleri: Arıza Alarmı, Yağ Sıcaklığı İzleme, Düşük Basınçlı Kapatma, Motor Koruma, Sıvı Seviye Uyarı, Filtre Elemanı Bekleme Uyarısı, Faz Dizisi Koruması, Ekipmanların Çok Yolla Korunması!
Otomatik Kapatma Mekanizması: Anormal durum tepkisi saniyeler içinde, ekipman hasarı riski sıfırdır !
Hizmetimiz

Ne sağladığımız: Sertifikalı mühendisler tarafından profesyonel makine kurulumu ve devreye alma işlemi, ardından operatörleriniz, programcılarınız ve bakım personeliniz için sistematik eğitim.
Faydalarınız:
Birinci Gün'den Pik Performans: Ekipmanın başlangıçtan itibaren ideal koşullar altında çalışmasını, uygunsuz kurulumun neden olduğu doğruluk sorunlarından veya potansiyel arızalardan kaçınmasını sağlar.
Güçlendirilmiş ekip: Operatörleriniz makineyi güvenli ve verimli bir şekilde kullanmayı öğrenerek malzeme atıklarını azaltmayı ve kullanıcı hatasından hasarı önleyerek üretkenliği en üst düzeye çıkarmayı öğrenir.
Şirket içi ilk yanıt: Ekibiniz, rutin bakım ve temel sorun giderme işlemlerini gerçekleştirmek, hizmet çağrılarına güvenmeyi ve zaman ve paradan tasarruf etmek için donanımlı olacaktır.
Ne sağladığımız: 7/24 veya güçlü uzaktan teşhis özellikleri ile donatılmış yardım hattı, çevrimiçi sohbet veya video üzerinden genişletilmiş işletme saati desteği.
Faydalarınız:
Anında Problem Çözme: Basit sorunlar, bekleme sürelerini ortadan kaldırarak uzman rehberliği yoluyla hemen çözülür.
Kesin uzaktan teşhis: Teknik ekibimiz, yazılım, parametreler veya donanım olsun, bir sorunun temel nedenini hızlı bir şekilde tespit etmek için makinenizin sistemine uzaktan erişebilir. Sorunların% 80'inden fazlası uzaktan çözülebilir ve kesinti süresini büyük ölçüde azaltır.
Azaltılmış Hizmet Maliyetleri: Gereksiz yerinde ziyaretlerden kaçınır, doğrudan seyahat ve işgücü masraflarından tasarruf sağlar.
Ne sağladığımız: yüksek kaliteli, orijinal (OEM) sarf malzemeleri ve garnet, nozullar, karıştırma tüpleri ve yüksek basınçlı contalar gibi yedek parçalarla dolu yerel veya bölgesel parça merkezleri.
Faydalarınız:
Kritik Parçalara Hızlı Erişim: Anahtar bileşenler 24-48 saat içinde verilebilir ve parçaları beklerken uzun üretim durdurulmasını önler.
Garantili kesme kalitesi: Orijinal OEM parçalarının kullanılması, ilişkili bileşenlerin ömrünü uzatırken optimal kesme performansı ve hassasiyet sağlar ve daha düşük bir toplam sahiplik maliyetine yol açar.
Basitleştirilmiş tedarik: Kaliteye güvenen parçalar için tek elden bir mağaza, zaman kaybedemeyeceğiniz ve daha düşük alternatifleri test eden ve test etmediğiniz anlamına gelir.
Ne sağladığımız: Zamanlanmış Önleyici Bakım (PM) sözleşmeleri ve gerektiğinde, yerinde hizmet için sertifikalı saha mühendislerinin hızlı bir şekilde gönderilmesi.
Faydalarınız:
Genişletilmiş ekipman ömrü: Düzenli bakım, potansiyel sorunları büyük arızalar haline gelmeden önce tanımlar ve çözer ve makinenin ömrünü önemli ölçüde genişletir.
Öngörülebilir Kesinti: Planlanan Üretim Molaları Sırasında Plan Bakımı Planlı, yoğun zamanlarda beklenmedik, pahalı arızalardan dolayı.
Verimli ve Etkili Onarımlar: Bir site ziyareti gerektiğinde, mühendisler uzaktan teşhis ile bilgilendirilir ve ilk ziyarette sorunu çözmek için doğru parçalarla donatılmıştır.
Ne sağladığımız: normal yazılım güncellemeleri, donanım yükseltme yolları (örn., 5 eksenli kesme kafasına veya daha yüksek basınçlı bir pompaya) ve işlem optimizasyonu danışmanlığı.
Faydalarınız:
Geleceğe Dönüşüm Teknolojisi: En son kesme teknolojilerine ve verimlilik iyileştirmelerine erişin
Müşteri İncelemeleri

